Teilmöblierte Dachgeschosswohnung mit Küche, 2 Zimmer Nähe Klinik Ottakring
Lorenz-Mandl-Gasse 39, 1160 Wien Objektnummer : 10000_LMG39_MW
Etage DG
2,0 Zimmer
67,90
1.099,00
Lorenz-Mandl-Gasse 39, 1160 Wien
Dachgeschoss-Wohnung Nähe Klinik Ottakring und U-Bahn Station Ottakring.

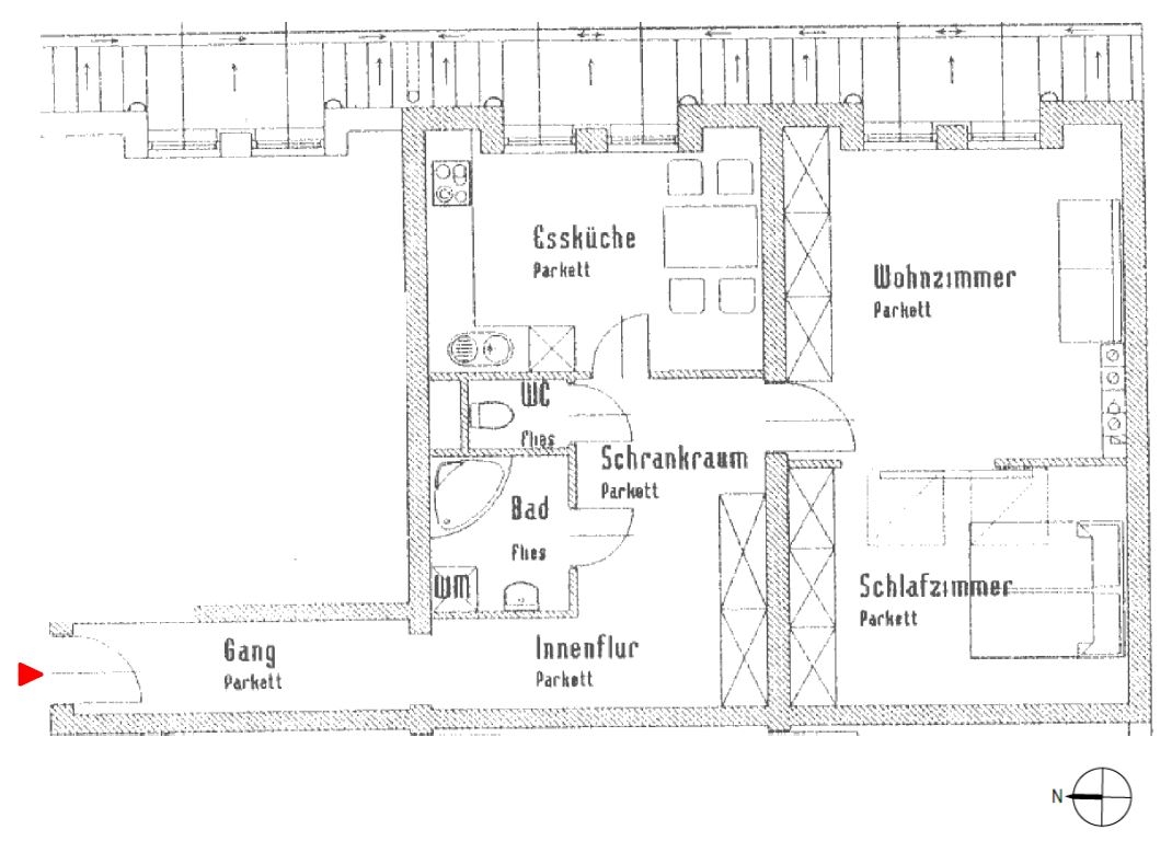
2 Zimmer-Wohnung im Dachgeschoss (5. Stock) mit Lift und mit ostseitiger Ausrichtung, bestehend aus:
- Wohnzimmer
- Schlafzimmer
- Essküche (möbliert)
- Bad mit Dusche
- WC
- Gang/Innenflur/Schrankraum
- Kellerabteil

Ausstattung in der Wohnung:
- Teilmöbliert (Wandverbauten, Garderobe, Küche, Schränke/Kästen)
- Parkettböden/keramische Fliesen
- Kunststofffenster, 2-fach verglast mit Außenrollläden
- Heizung über Fernwärme mit Radiatoren
- Telekabelanschluss, Telefon

Ausstattung im Haus:
- Abstellplätze im Haus anmietbar
- Müllraum
- Fahrrad- u. Kinderwagenraum
- begrünter und begehbarer Innenhof

Anmietungskonditionen:
- Befristung: 3 Jahre (ggf. Verlängerung möglich)
- Mindestvertragsdauer: 1 Jahr
- Kündigungsfrist: 3 Monate
- Provision: nein
- Mietvertragserstellungsgebühr: nein
- Kaution: ja (mind. 3 Brutto-Monatsmieten)
- Bürgschaft möglich: nein
- Bewerbungsunterlagen: 3 letzte Lohnzettel, Ausweiskopie, Meldezettel
- Kaufoption: nein
- Förderung: nein
- Küche/Kochnische möbliert: ja

Verkehrsanbindung:
U3, Straßenbahn 46, Bus 48A, Schnellbahn S45.

Gemäß Erstauftraggeberprinzip bezahlt der Abgeber die Maklerprovision.

Die angeführten Informationen basieren auf Informationen und Unterlagen des Vermieters und sind seitens der Maklerin ohne Gewähr.

BUWOG erklärt, dass sie als Maklerin einseitig nur für den Vermieter tätig ist und weist darauf hin, dass ein wirtschaftliches Naheverhältnis zum Vermieter besteht.

Ihr BUWOG Vertriebsteam

Klaudio Alexander Graf, BA, MLS

Details & Ausstattung

Etage
DG
Zimmer
2,0
Fläche
67,90 m2
Küche
Aufzug

Preisinformation

Miete netto
894,41 €
Betriebskosten netto 
185,99 €
Umsatzsteuer
18,60 €
Monatliche Gesamtmiete
1.099,00 €
Kaution
3.300,00 €

Lage

Lorenz-Mandl-Gasse 39, 1160 Wien
Gut zu erreichen:
- Erholungsgebiet Steinhof
- Universitätssportzentrum Schmelz
- Klinikum Ottakring
- Einkauffstraße Thaliastraße
- Volksschule
- Bundesrealgymnasium
- HTL Wien West
- Ottakringer Bad
- uvm.

Ihr BUWOG Vertriebsteam

Klaudio Alexander Graf, BA, MLS